売地
ーー

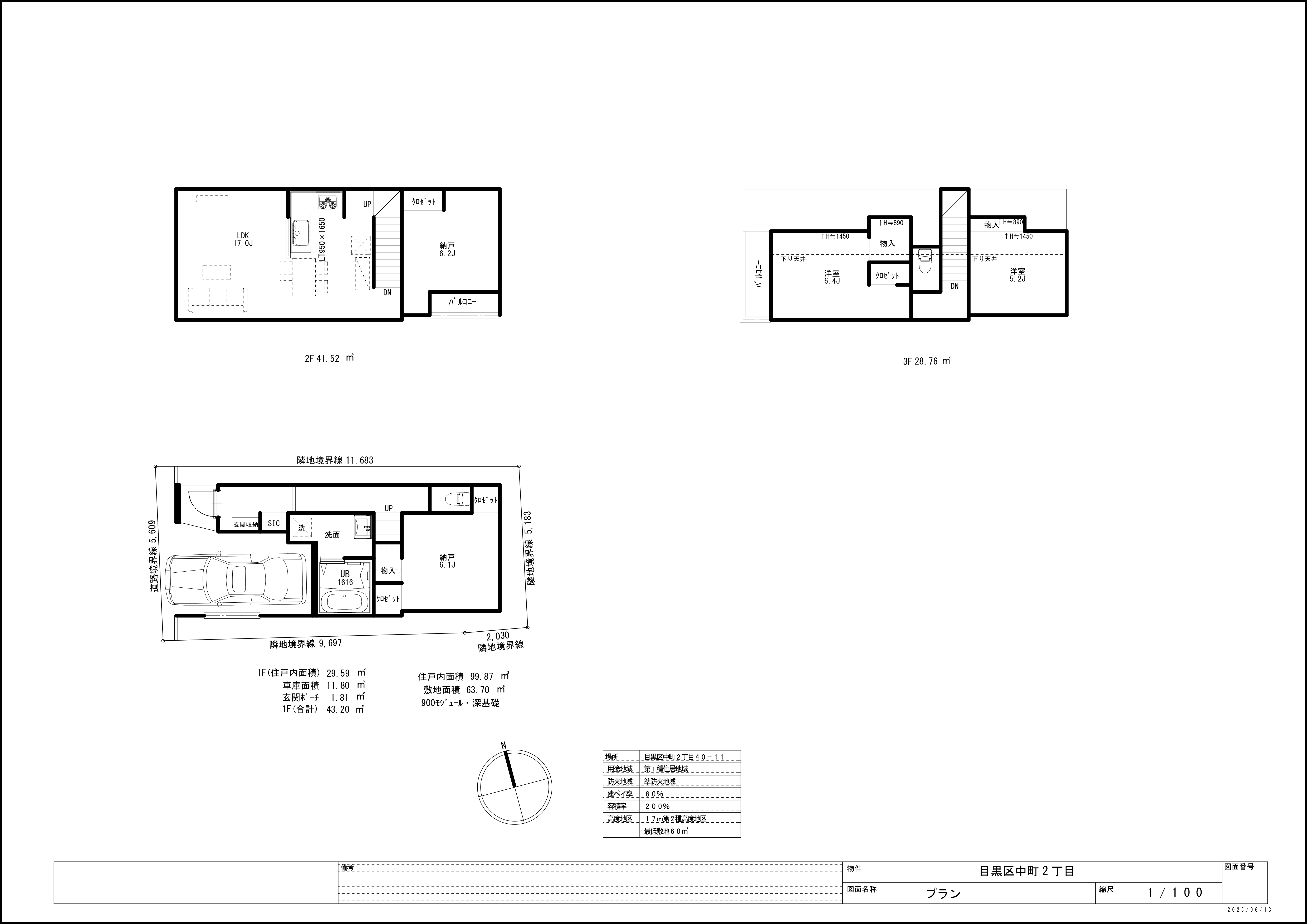
目黒区中町二丁目 売地

「静けさと利便性が共存する、目黒の隠れ家。」

目黒区中町二丁目 売地
限定一区画
11,520万円(建物参考価格:2,460万円、総額:13,980万円)
参考プラン:4LDK+車庫
詳細については、お問い合わせください。

スタッフ紹介

私は東京からいわき市に移住し、この街の素晴らしさに心を奪われました。この街の豊かな自然、温かい人々、そして住みやすさに感動しています。
不動産に関するご相談やお困りごとがありましたら、どうぞお気軽にご連絡ください。誠実に対応し、親身になってサポートさせていただきます。

大澤一仁